Morgensonne
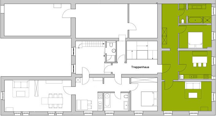
Großzügige Zweizimmerwohnung für 2 bis 4 Personen mit einem Schlafzimmer (Doppelbett), einem Wohnzimmer (Schlafsofa), Flur mit Schränken, Wohnküche und Bad mit Doppelwaschtisch, Dusche und Badewanne.
Metallfreies Vollholz-Doppelbett mit Schweizer Liegesystem Hüsler Nest und extra breiten und langen Federbetten. Hochwertige Bettwäsche und Hand- bzw. Badetücher.
Voll ausgestattete Küche mit Herd, Kühlschrank, Geschirrspüler, Wasserkocher, Kaffeemaschine (Filter Nr. 4) und Espresso-Kocher. Großzügige Ausstattung an hochwertigem Villeroy & Boch-Porzellan und Gläsern sowie Pfannen, Kochtöpfen und sonstigen Küchenutensilien.
Bad mit Doppelwaschtisch, Dusche, Badewanne, Waschmaschine, Wäschetrockner und Haartrockner.
Musikanlage, digitales Fernsehen, DVD-Player, W-LAN.
